
Prospective Residents

Learn more
Living at Oak House
Oak House offers a variety of room styles, from private dormitory rooms with ensuite washrooms to shared suites, so you can choose a space which best suits your needs.
Shared suites offer same gender or all gender living preference.
All rooms are fully furnished and utilities are included.

your options
Dormitory Rooms
Single occupancy bedrooms with either private or semi-private washrooms. Semi-private washrooms are shared with the adjacent bedroom.
Shared Suites
Single occupancy bedroom in a shared 4-person suite that includes a full kitchen, living room, and two semi-private washrooms
Standard or premium room types are available in both dormitory rooms and shared suites.
Fully Furnished

Bedrooms
All bedrooms are furnished with the following for each student:

SUITES
Alongside private bedrooms, suites feature furnished communal living and dining spaces, which include:
See more
Photos



Take a 360 tour
Standard dorm rooms include:
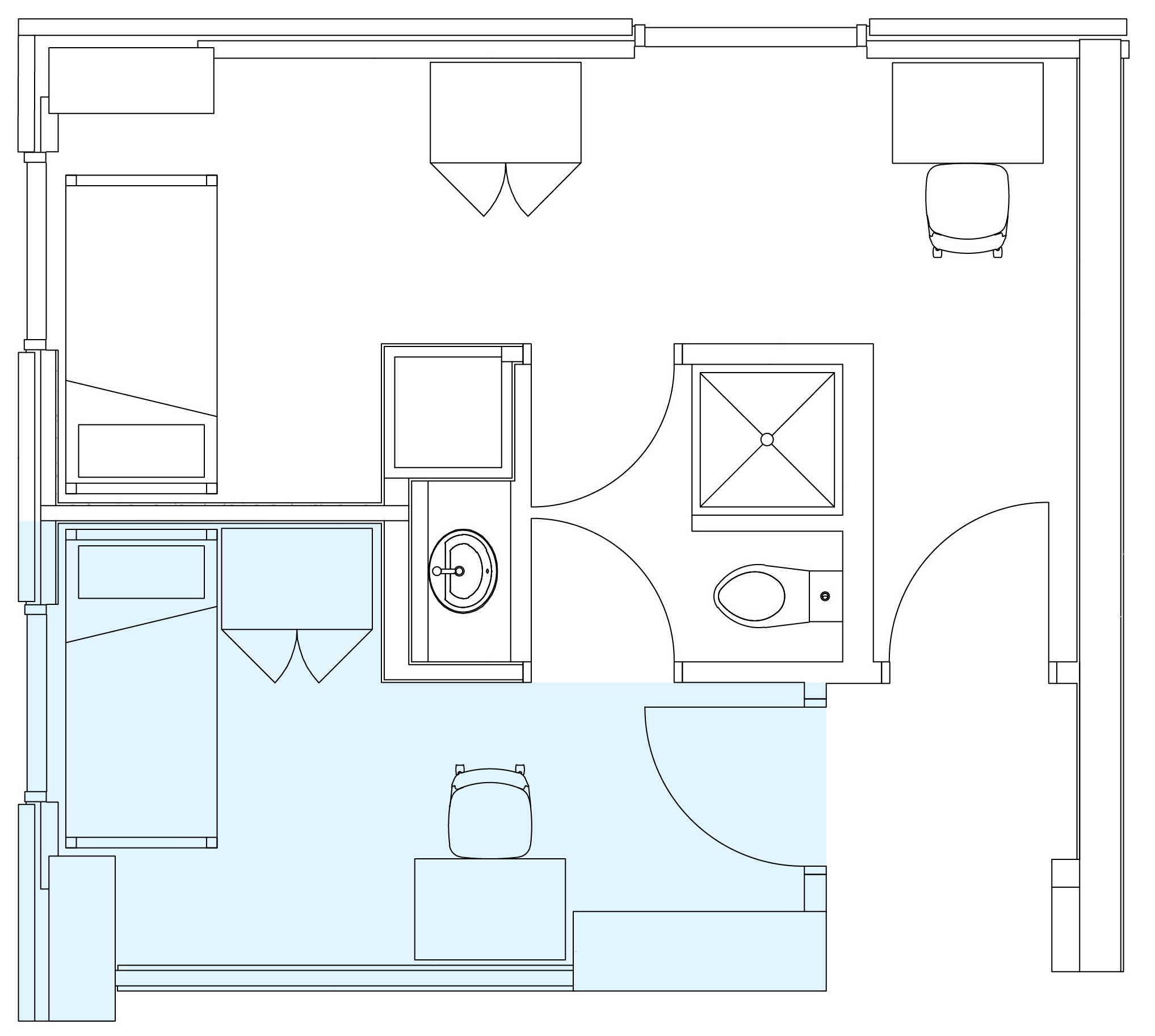
Standard dorms offer single occupancy bedrooms with semi-private washrooms. Semi-private washrooms are shared with the adjacent bedroom. Washrooms include a sink, toilet and shower.
Please note: Images show an example room only. Bedroom sizes and layouts will vary.










dormitory rooms
All undergraduate students, including first year and upper year students, can apply to live in our dormitory rooms.

shared suites
Graduate, second entry and upper year undergraduate students will receive priority when applying to live in shared suites. All students are welcome to apply.
Suitemates will be assigned within the same application category (i.e. Graduate/Second Entry, First Year undergraduate or Upper Year undergraduate)

Good to know
Meal plans are required for all residents living in dormitory rooms. Meal plans are optional for those who live in a shared suite.
To find out more about meal plans, please visit the Food Services website.